O tym obiekcie
Apartament Fioletowy” usytuowany jest w zabytkowej części Gdańska nad brzegiem rzeki Motława vis a vis Żurawia Gdańskiego przy ulicy Szafarnia na parterze nowoczesnego kompleksu usługowo mieszkaniowego wybudowanego w 2010r. Wzdłuż ulicy na rzece usytuowana jest Marina przy której cumują jachty i łodzie motorowe. W kompleksie funkcjonuje całodobowa ochrona. Jest to doskonałe miejsce na nocleg zarówno dla turystów jak i przedsiębiorców. Bardzo łatwy dojazd od strony Warszawy (z drogi krajowej nr 7).
W promieniu 2 km znajdują się najważniejsze zabytki starego Gdańska. Na wyspie Ołowianka w odległości 350m od apartamentu znajduje się Polska Filharmonia Bałtycka, a także Centralne Muzeum Morskie z zacumowanym statkiem muzeum „Sołdek”. W bezpośrednim sąsiedztwie w zabytkowym spichlerzu usytuowany jest Hotel Gdańsk i serwująca znakomite jedzenie restauracja Brovarnia z mini browarem – produkująca kilka rodzajów własnego piwa. Przy hotelu funkcjonuje niedawno uruchomione centrum „Med Spa”. W kompleksie usytuowany jest sklep spożywczy i restauracja „Qrczak”. Na terenie osiedla znajduje się plac zabaw dla dzieci.
Po drugiej stronie Motławy funkcjonuje przystań Polskiej Żeglugi Bałtyckiej skąd tramwajem wodnym można zwiedzić zarówno port gdańskim, Westerplatte jak również można popłynąć na wyspę Sobieszewską i na Hel. Do przystani można dostać się pieszo przez pobliski most lub przepłynąć Motławę promem.
Wyposażenie:
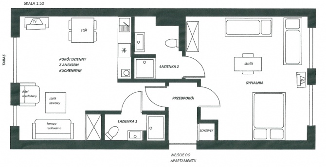
Apartament złożony jest z dwóch przestronnych pokoi (pokoju dziennego i sypialni) oraz przedpokoju. Każdy z pokoi posiada własną łazienkę z kabiną prysznicową. Pokój dzienny (salon) posiada ponadto aneks kuchenny i wyjście na taras. W kuchni dostępne są podstawowe naczynia, sztućce, czajnik, toster, opiekacz, kuchenka indukcyjna i mikrofalowa, lodówka.
W apartamencie dostępne są również: TV kablowa, Internet Wi-Fi, sprzęt Hi-Fi, pościel, ręczniki, 2 suszarki do włosów, żelazko, deska do prasowania, suszarka do bielizny, odkurzacz.
Jednocześnie w apartamencie może nocować nawet 7 osób. Sypialnia (od 1 do 4 osób) wyposażona jest w łóżko dwuosobowe i dwa łóżka jednoosobowe,
pokój dzienny (od 1 do 3 osób) wyposażony jest w rozkładaną kanapę dwuosobową i rozkładany fotel jednoosobowy.
Powierzchnia całego mieszkania to 63,8m2. Do apartamentu przynależne jest jedno miejsce postojowe w hali garażowej.
Rezerwacja e-mailowa lub telefoniczna. Zadatek za pierwszą dobę na konto, płatność za cały pobyt przy odbiorze kluczy.
Cennik
Ceny wynajmu całego apartamentu w terminie:
01.09.2013 - 20.10.2013
niedziela - piątek 200zł/dobę
piątek - niedziela 240zł/dobę
20.10.2013 - 24.12.2013
niedziela - piątek 180zł/dobę
piątek - niedziela 220zł/dobę
Udogodnienia
- wynajem
- apartament
- noclegi
- spanie
- kwatera
- nocowanie
Kontakt
-
Adres:
ul. Szafarnia 7, 80755 Gdańsk -
Telefon:
0000000 -
Komórka:
662372220 -
Strona WWW:
http://www.szafarnia.dobrynocleg.pl